Год разработки:
2020Заказчик:
Международный конкурсАрхитектор:
Сергей ФранцкевичРасположение объекта:
Саудовская Аравия, ДаммамТаун-хаусы в Саудовской Аравии.
Застройка сформирована на основе лаконичных решений с учетом местной специфики и традиций. Комплекс создан на основе типового жилого модуля, при этом каждый клиент имеет определенный набор индивидуальных опции для своего жилища. Объемно-пространственная композиция блоков, наличие открытых и приватных зон, освещенных и теневых участков позволяет создать комфортную жилую среду.
Архитектурная концепция комплекса сочетает в себе традиционные элементы местной культуры и инновационные решения, соответствующие современным требованиям к комфорту и устойчивому развитию.
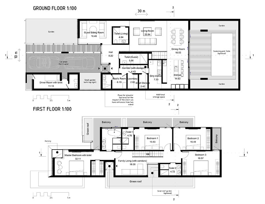
Планировка таун-хаусов продумана до мелочей. Каждый дом имеет несколько уровней, что позволяет эффективно использовать пространство. На первом этаже располагается светлая и просторная кухня-гостиная. Большие панорамные окна наполняют помещения светом и обеспечивают прекрасный вид на окружающую природу. На втором этаже расположены спальни. С третьего этажа открывается доступ к террасе, где можно проводить время на свежем воздухе и наслаждаться вечерними закатами.
Отделка интерьеров выполнена с использованием натуральных материалов, таких как дерево, камень и текстиль, что создает теплую и комфортную атмосферу.
Площадь участка
Площадь дома
Количество домов
Этажность


